这里是增城中新装饰公司领头羊金牛装饰公司网站文章模块栏目内容页
防水卷材施工方案有哪些及防水施工的注意细节

   防水是每个家庭生活装饰的一部分,市场上有很多防水材料,现在很多业主会选择使用防水卷材,有很多品牌的防水卷材,DTM防水卷材为乙烯乙酸乙烯(EVA)或热塑性弹性体(TPO)卷材上下表面采用特殊工艺无纺布复合而成。防水卷材施工方案防水施工的注意细节是什么。接下来,跟随装饰公司网络小边了解相关内容!

   

   
   

   

       

   

   
   

   

   一、防水卷材施工方案

   

   
   

   

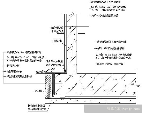
   1、细节附加层施工。

   

   
   

   

   2.在管根、阴阳角、预埋件等节结构应在平面和立面的拐角处增加一层相同的附加层卷材进行加固。平面与立墙交接处附加层卷材的宽度不小于500mm。

   

   3.涂基层胶浆,大面铺卷材前,应在基层布置尺寸,弹出基准线,在基层表面涂胶浆。

   

   
   

   

   4.将卷材铺在大面上。涂上基层胶浆后,抬起整个卷材,翻过来,将一端粘贴在基准线的预定部分,然后将卷材的长边延伸到基准线上。粘贴时,卷材不得拉伸,卷材应在松弛状态下粘贴在基层上。每隔1次m左右向基准线靠贴,然后用长刷向前和两侧滚动,排出空气,展平贴实。

   

   
   

   

   5.卷材搭接宽度大面铺设卷材时,短边和长边的两个卷材搭接宽度不得小于100mm。铺设双层卷材时,上下两层及相邻两层卷材的接缝应错开1/3~1/2宽,两层卷材不得垂直铺设。在平面与立墙的角落,卷材接缝应留在平面上,距立墙不小于600mm。

   

   
   

   

       

   

   
   

   

   二、防水卷材施工注意细节

   

   
   

   

   1.基层应先处理。去除原装饰材料,清理浮子和水泥,要求表面光滑干燥。

   

   
   

   

   2.涂防水涂料。在防水处理基层上涂刷,干燥后(约2-4小时)重复涂刷,防水处理完成。防水涂料应均匀涂刷,无漏刷、鼓包、脱落现象,否则会影响防水效果。在阴阳角和管道根部铺一层玻璃丝布,以增强效果。如果选择聚氨酯作为防水涂料,可重复涂刷2-3次。聚氨酯涂料本身可形成具有一定抗拉性的弹性保护膜。为了提高防水效果,可以铺一层玻璃丝布,但成本会增加。

   

   
   

   

   以上是小编的详细答案。我不知道你对装饰公司网络的介绍是否满意~假如你还想知道